WellStar - Multiple Locations

Medical - Renovation

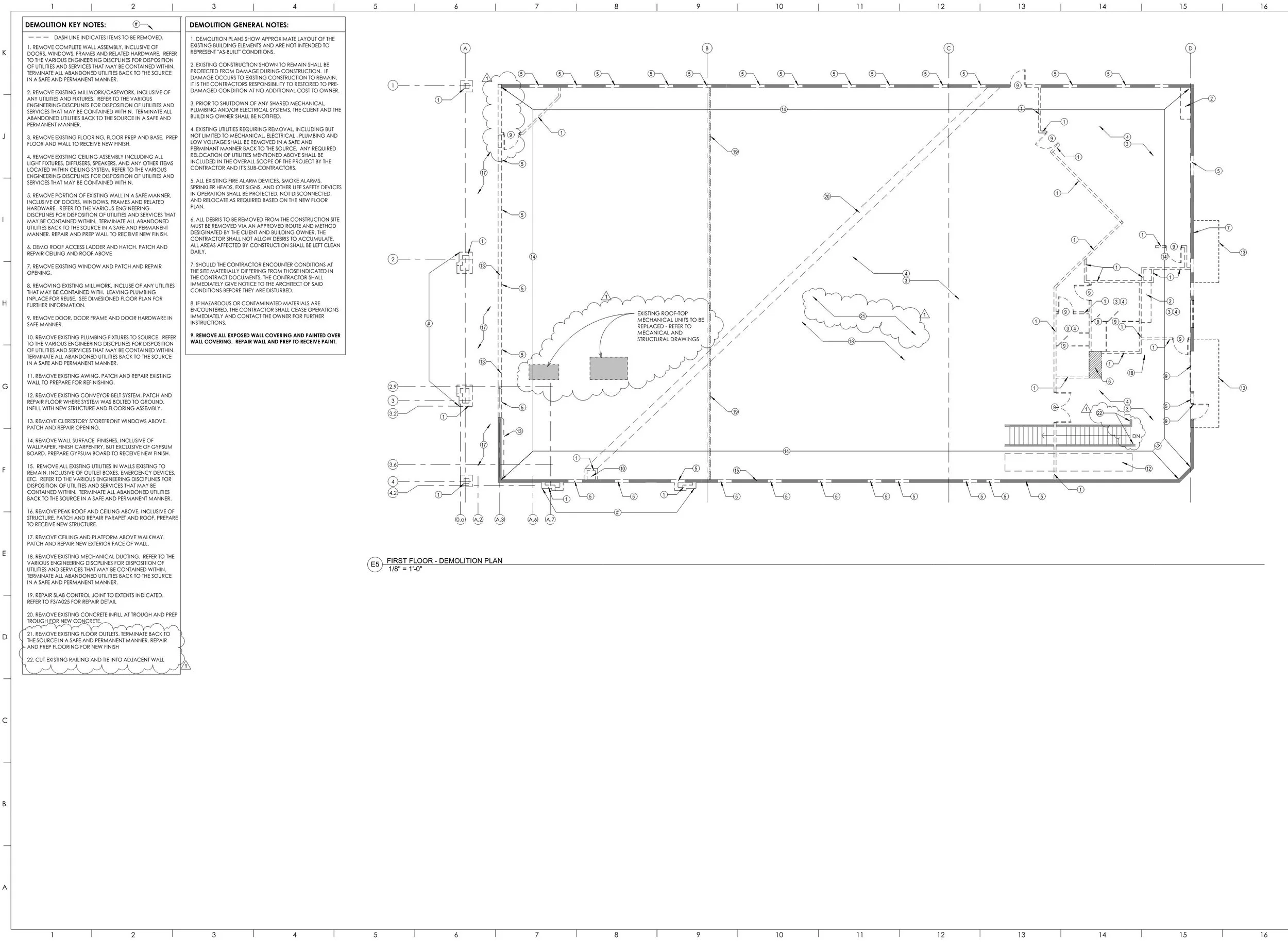
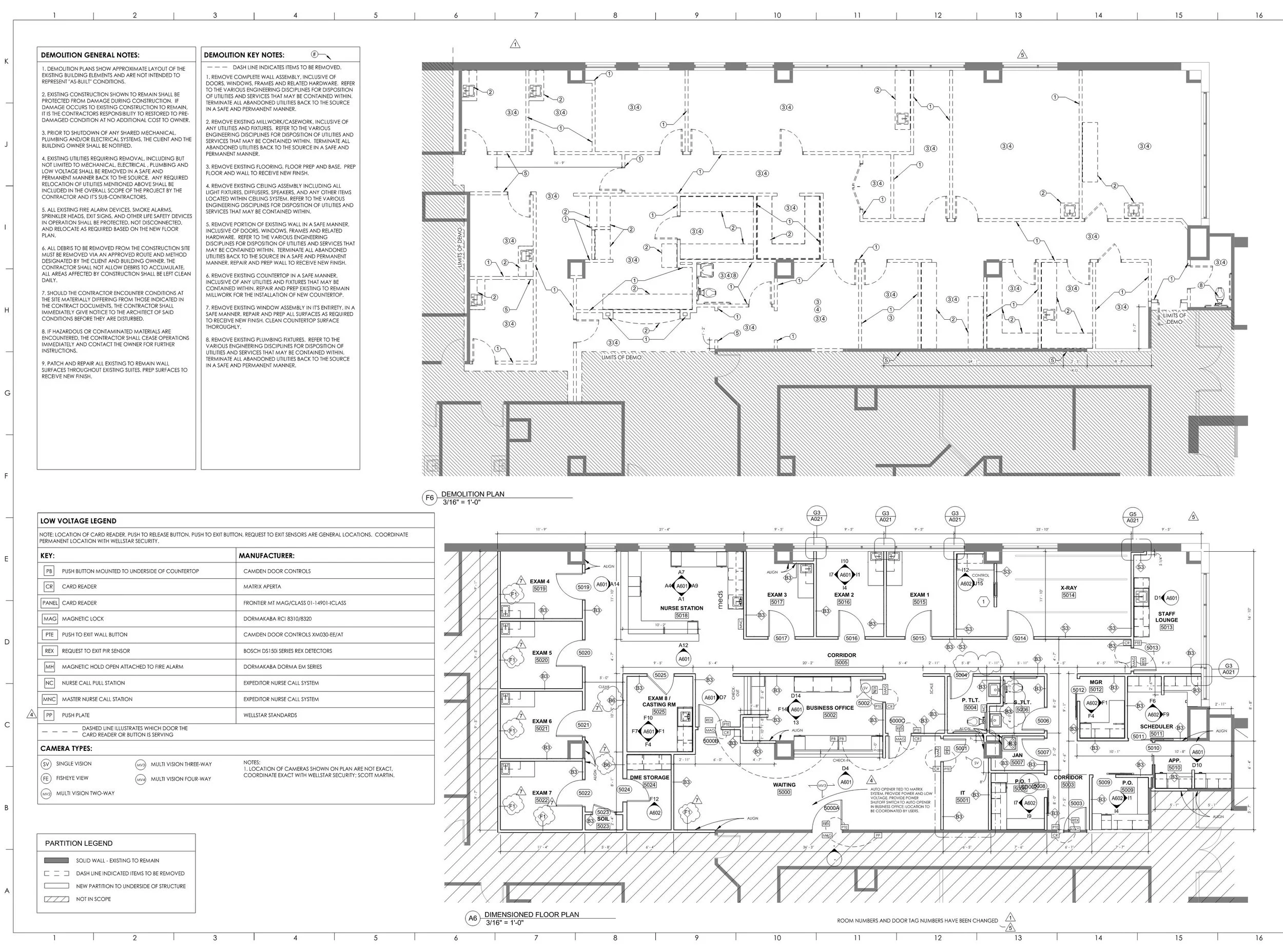
Medical renovation projects that I have worked on range greatly in size and scope. I have met the needs for projects that involve interior and exterior rebuild as well as small or individual suite renovations as medical practices expand or relocate. The below examples demonstrate just a few of projects that I have coordinated, working alongside WellStar to provide the latest technologies to a range of medical practices.

Previous
Previous

WellStar - Prototypes

Next
Next

Reed Residence - Single family VR - Orlando